
- free design & space planning
- nationwide delivery & installation
- free chair samples
- bespoke options available
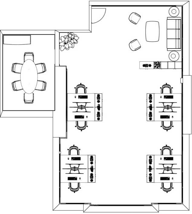
Zero Carbon Group recently approached us following a recommendation for our expertise in office design. They required our support in developing office furniture and space plans to comfortably accommodate eight staff members at their Manchester office. Alongside this, they were seeking a creative interior design solution to elevate the workspace, creating a welcoming and professional environment that supports hybrid working while also providing an impressive setting for customer visits.
LOCATION – ZERO CARBON GROUP, MANCHESTER
PROJECT TYPE – OFFICE FURNITURE DESIGN & SPACEPLAN
SECTOR – RENEWABLE ENERGY
OCCUPANCY CAPACITY – 8 STAFF MEMBERS


By submitting your information into this form you agree to receiving communication from Bullock and Bosson. For more information visit our Privacy Policy page.