
- free design & space planning
- nationwide delivery & installation
- free chair samples
- bespoke options available
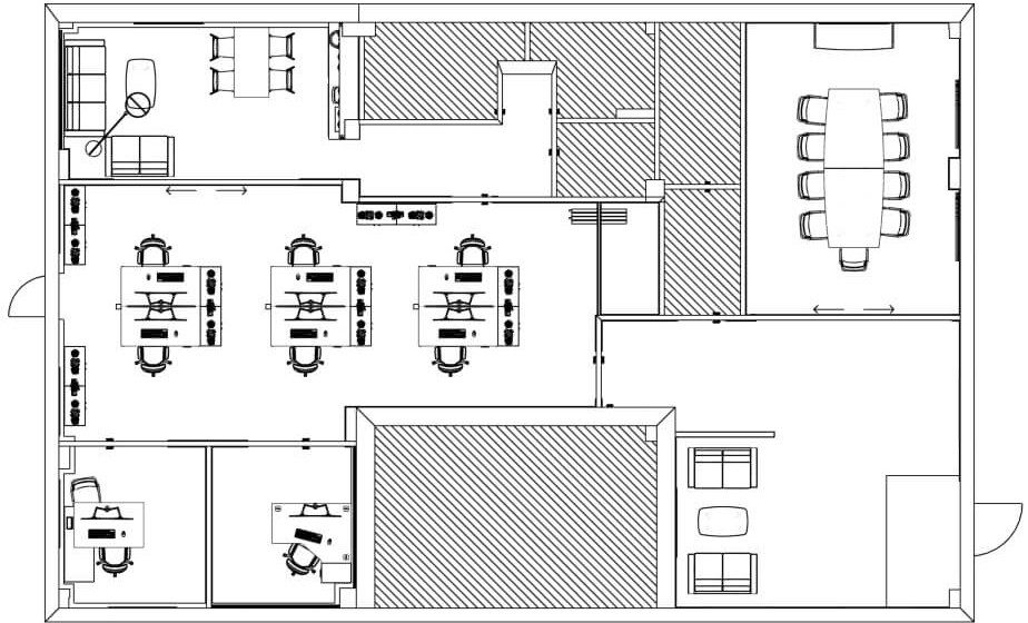
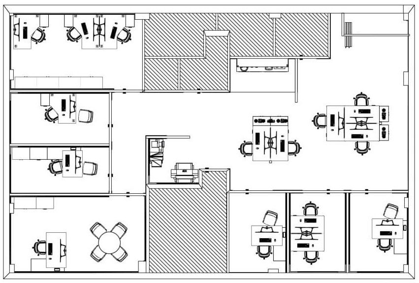
Multi-Temp UK recently got in touch having been recommended for our expertise in office design. They sought our assistance in developing office furniture space plans that would comfortably accommodate 23 staff, along with creative interior design solution aimed at creating a modern, comfortable environment that would inspire their loyal team to relocate and impress customers and suppliers alike.
LOCATION – MULTI-TEMP UK LTD, CANNOCK
PROJECT TYPE – OFFICE FURNITURE DESIGN & SPACEPLAN
SECTOR – AIR CONDITIONING
OCCUPANCY CAPACITY – 23 STAFF MEMBERS




By submitting your information into this form you agree to receiving communication from Bullock and Bosson. For more information visit our Privacy Policy page.