Allied Insulators

Office Refurbishment Project

The Client's Brief

Allied insulators recently got in touch having been recommended for our expertise in office design. They sought our assistance in developing office furniture space plans that would comfortably accommodate 15 staff, along with creative interior design solution aimed at elevating the workspace and attracting top tier talent to support their expanding business.

PROJECT TYPE – OFFICE REFURBISHMENT

SECTOR – MANUFACTURING INSULATORS

PROJECT TURNAROUND – 5 WEEKS

Space Planning - Floorplans

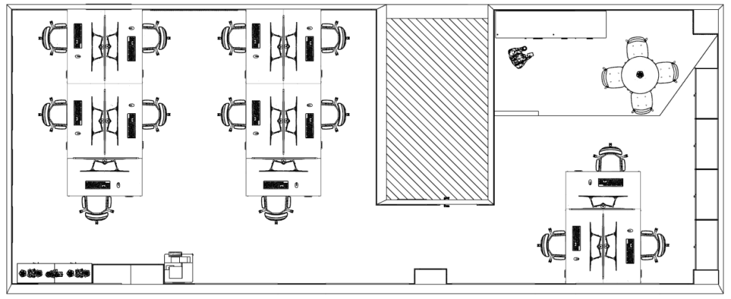
Ground Floor

allied insulators office design ground floor floorplan

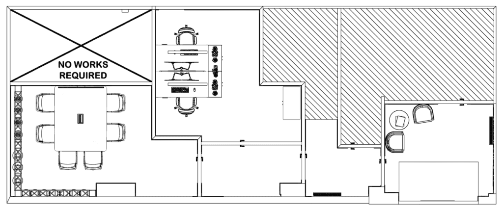
1st Floor

Visualisations - 3D Renders

Final Artical - Project Photos

Allied Insulators

Office Refurbishment Project

The Client's Brief

Allied insulators recently got in touch having been recommended for our expertise in office design. They sought our assistance in developing office furniture space plans that would comfortably accommodate 15 staff, along with creative interior design solution aimed at elevating the workspace and attracting top tier talent to support their expanding business.

PROJECT TYPE – OFFICE REFURBISHMENT

SECTOR – MANUFACTURING INSULATORS

PROJECT TURNAROUND – 5 WEEKS

Space Planning - Floorplans

Ground Floor

allied insulators office design ground floor floorplan

1st Floor

Visualisations - 3D Renders

Final Artical - Project Photos

YouTube
LinkedIn
Instagram

Request a call back from the Bullock & Bosson team.

By submitting your information into this form you agree to receiving communication from Bullock and Bosson. For more information visit our Privacy Policy page.